- トップページ
- 東京23区内
東京23区内
満室稼働中 「入谷」駅徒歩4分の好立地 3線4駅利用可 北西公道角地 検査済証有 ※一部借地権
| 物件 番号 |
種別 | 駅 | 価格 | 利回り |
|---|---|---|---|---|
| 14793 | 一棟マンション | 入谷 | 57,000万円 | 4.89% |
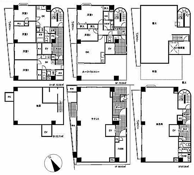
| 備考 | 仲介手数料30%割引 SRC造地下1階付9階建 店舗事務所2戸 2DK13戸 EV 北側27m・西側6m公道面 満室 ※一部借地権:地代80,450円/月 | |||
| 所在地 | 台東区松が谷 |
|---|---|
| 駅から | 徒歩4分 |
| 土地面積 | 143.38m2 |
| 床面積 | 873.36m2 |
| 築年月 | 1997年3月(築29年) |
| 構造 | SRC |
| 戸数 | 14戸 |
| 用途地域 | 商業地域 |
| 建ぺい率 | 80% |
| 容積率 | 600% |
| 年収入 | 2,786.4万円 |
| 取引形態 | 媒介 |
| おすすめ ポイント |
日比谷線「入谷」駅から徒歩4分の駅近マンションです。 山手線「鶯谷」駅・つくばエクスプレス線「浅草」駅も徒歩圏内。 4路線利用でき、都内主要駅へダイレクトアクセス可能。 浅草浅草寺やドン・キホーテも徒歩圏内です。 物件は大通り沿いの角地で視認性の良い立地です。 2025年10月にバリューアップ工事を実施済みです。 ※一部借地権につき、地代80,450円/月がかかります。 ご興味のある方は、お気軽にお問合せ下さい!(販売図面を10秒後に自動返信) |














