- トップページ
- 東京23区内
東京23区内
満室稼働中 3駅2路線利用可 始発駅「方南町」駅からは徒歩14分 コンビニ徒歩4分
| 物件 番号 |
種別 | 駅 | 価格 | 利回り |
|---|---|---|---|---|
| 64392 | 売りアパート | 代田橋 | 24,600万円 | 4% |
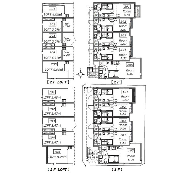
| 備考 | 仲介手数料30%割引 1R10戸 バストイレ別 全室ロフト付 室内洗濯機置場 独立洗面台 オートロック 防犯カメラ 北西側公道面 満室 | |||
| 所在地 | 杉並区方南 |
|---|---|
| 駅から | 徒歩7分 |
| 土地面積 | 118.93m2 |
| 床面積 | 135.52m2 |
| 築年月 | 2015年8月(築10年) |
| 構造 | 木造 |
| 戸数 | 10戸 |
| 用途地域 | 第一種住居地域 |
| 建ぺい率 | 60% |
| 容積率 | 150% |
| 年収入 | 984万円 |
| 取引形態 | 媒介 |
| おすすめ ポイント |
京王線「代田橋」駅から徒歩7分の木造アパートです。 当路線特急停車「笹塚」駅徒歩9分、丸ノ内線方南町支線始発「方南町」駅から徒歩14分。 合計3駅2路線利用できます。 「新宿」駅、「池袋」駅、「東京」駅へダイレクトアクセスが可能。 休日のお買い物や通勤・通学に便利な立地です。 全室ロフト付で、収納スペースとしても活躍します。 セキュリティ面に配慮したオートロックや防犯カメラを完備。 ご興味のある方は、お気軽にお問合せ下さい!(販売図面を10秒後に自動返信) |
















