- トップページ
- 埼玉
埼玉
満室稼働中 土地157坪 東武スカイツリーライン準急停車駅 コンビニ徒歩3分 閑静な住宅街
| 物件 番号 |
種別 | 駅 | 価格 | 利回り |
|---|---|---|---|---|
| 64887 | 売りアパート | 大袋 | 12,000万円 | 6.46% |
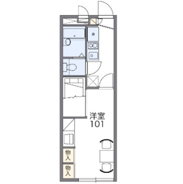
| 備考 | 仲介手数料30%割引 軽量鉄骨造2階建 1K バストイレ別 室内洗濯機置場 浴室乾燥機 TVモニターホン 駐車場10台 駐輪場 西側公道面 サブリース中 ※レオパレス施工 | |||
| 所在地 | 越谷市大林 |
|---|---|
| 駅から | 徒歩14分 |
| 土地面積 | 520.68m2 |
| 床面積 | 357.72m2 |
| 築年月 | 2004年1月(築22年) |
| 構造 | 軽量鉄骨 |
| 戸数 | 16戸 |
| 用途地域 | 第一種低層住居専用地域 |
| 建ぺい率 | 60% |
| 容積率 | 100% |
| 年収入 | 775.64万円 |
| 取引形態 | 媒介 |
| おすすめ ポイント |
東武スカイツリーライン「大袋」駅から徒歩14分のアパートです。 都心方面への通勤・通学にも利用しやすく、落ち着いた住宅街が広がる住環境が魅力です。 土地面積は駐車場・駐輪場含め157坪。 物件からコンビニまでは徒歩3分で利用できます。 ※レオパレス施工です。 ご興味のある方は、お気軽にお問合せ下さい!(販売図面を10秒後に自動返信) |
















